--   |  设为首页

帮忙装修网

中山

[切换]

中山105㎡三室新房改成一室一厅酒店式住宅

来自:中山帮忙装修网 日期:2022-07-08 17:00:35 208264 次 分享到:
导读:
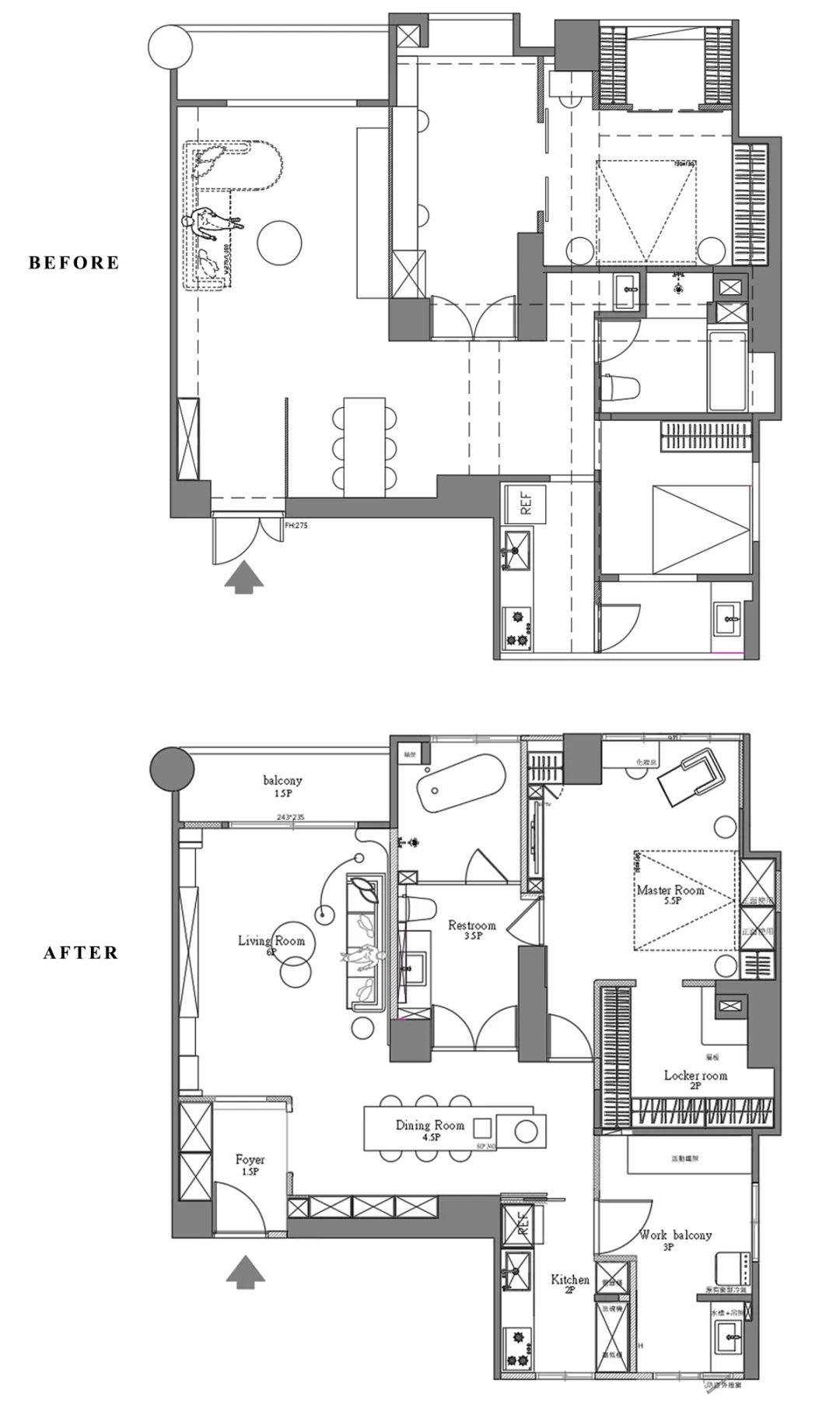
这次改造,把原来的三房改造成了一室一厅的酒店式住宅,提升空间感与独立性,也更符合两人的日常步调与节奏。中山帮忙装修网公司分享。

20220309_115109_000.jpg

今天中山帮忙装修网公司分享的案例,屋主是一对乐于享受生活情趣的夫妻,喜欢在假日来场小旅行,体验各式风情的旅店。

所以这次改造,把原来的三房改造成了一室一厅的酒店式住宅,提升空间感与独立性,也更符合两人的日常步调与节奏。

房屋面积:105㎡

户型格局:1室1厅1卫

设计团队:帷圆·定制 circle

居住人数:2人

20220309_115109_001.jpg

屋主需求:

? 通过翻修能够拥有通透的采光

? 喜欢酒店式住宅

? 想要有大浴室

? 增加收纳空间

20220309_115109_002.jpg

玄关:

为了划分家的空间尺度,让入门瞬间有个缓冲空间,所以玄关新增了落尘区。

20220309_115109_003.jpg

九宫格瓷砖地面,恰当地与客厅做了分隔。

透明的玻璃玄关,保护隐私的同时,将屋外的光引入,让空间充满着光的律动性与轻盈感。

20220309_115109_004.jpg

客厅:

墙面以纯白色为基调,搭配散发温暖气息的鱼骨拼木地板,雅致又充满底蕴,阳台再巧妙地搭配美式折叠百叶门。

20220309_115109_005.jpg

电视墙以墨黑色木纹墙板做铺陈,内凹的地方设置层板,精巧而随性。

20220309_115109_006.jpg

沙发大胆选用深秋橘与祖母绿撞色,鲜明活泼朝气蓬勃。

20220309_115109_007.jpg

餐厅:

用餐区以神秘深邃的绿蛇纹石做为颜值担当,充满光感与色泽,支撑桌面的仿罗马柱,气度恢弘,与地板完美衔接。

轻盈的玫瑰金长条形吊灯,与横梁垂直悬挂,利用线条切割,消弭空间的压迫感。

20220309_115109_008.jpg

邻近餐桌的一字形平台,以同样材质的石材铺展,上方悬吊铁件置物架,用来陈列屋主旅行游历后的纪念品和风格摆件,下方的柜体,便于收纳储物。

厨房:

灰色橱柜,亮面立体墙面砖,精细却不过于繁复,为女主人打造愉悦的料理天地,多变且灵活。

扩充的三层电器柜,让散乱无章的小家电有了安居之处。

20220309_115109_011.jpg

主卧:

深墨绿色绒布床头,柔细短毛的触感,温雅高尚。搭配方形黑色护墙板,内敛深沉,与雪白的窗户互相烘托对照。 

20220309_115109_012.jpg

电视墙承袭客厅的设计,周围增加了多个抽屉,强化分类收纳的功能。

20220309_115109_013.jpg

卫浴:

推开由长虹玻璃与黑色门扇组合而成的双开卫浴门,走进拥有近14㎡大的干湿分离卫浴空间,偌大的室外窗,让光影倾泻而落,一扫幽闭与阴暗。

20220309_115109_014.jpg

斑驳蓊郁的墙面瓷砖,苍翠中富有璀璨感的绿,与浴室柜台面的珍贵石材相辉映。

烟灰色大理石纹雾面地砖,防滑抗污,质感细腻柔和。 

晕黄的灯光与镜面合而为一,点亮沐浴时光。

20220309_115109_015.jpg

精心配备的浴缸,一圆屋主在家泡澡的梦想。

多设了一道通往主卧的门,串联起流畅的回路动线,增加便利性。

装修预算不够?快来申请装修贷款!月息低至2.5厘。帮忙装修网为解决业主的装修资金难题,特与银行合作推出“装修贷”,一站轻松办理:18824725983 吴先生

长按二维码关注"帮忙装修网",了解更多装修资讯↓↓↓

或拨打免费热线:13822775923

已成功招标53521